
Facilities
Event Space
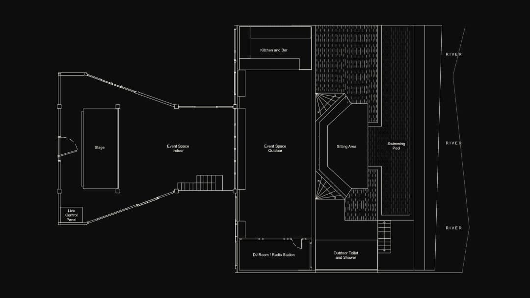
Our event space is a versatile indoor and outdoor venue designed for gatherings of all kinds — from intimate concerts and seminars to pool parties and private celebrations. The indoor area features a stage, comfortable seating, and a quality sound system, while the outdoor oasis centres on a 25-metre swimming pool surrounded by a bar, garden, and open lounge.
The outdoor sound system connects directly to our DJ Room, making live DJ sets a seamless part of any event. Whether you are planning a small creative gathering or a full production, we work with you to make it happen — in one of the most beautiful settings in Bali.
Floor Plan



What We Offer
Highlights
Indoor
Stage & Performance Area
A climate-controlled indoor space with a stage, comfortable seating, and a quality sound system — set up for concerts, presentations, and intimate performances.
Outdoor
25-Metre Swimming Pool
The centrepiece of our outdoor oasis — flanked by a bar, lounge seating, and lush garden. Perfect for pool parties, cocktail events, and relaxed networking.
Sound
Connected to the DJ Room
The outdoor sound system is linked directly to our DJ Room, making live DJ sets an effortless part of any event we host.
Flexibility
Versatile Configuration
From seated concerts to open-air pool parties — the space adapts to your event. We work with you to configure the layout for your needs.


The Space
What We Host
- Writing camps & creative retreats
- Mini concerts & live performances
- Seminars & workshops
- Pool parties
- Corporate events & networking
- Private gatherings
Planning an event?
Get in touch and we will put together the right package for your event and guest count.